| 2026/01/16 21:33 |
[PR] |
| 2010/05/18 23:00 |
ソファー製作記 その1 |
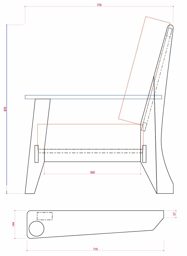
タマネギの収穫も無事にすんだので、日曜日は朝から木工してました。いよいよソファー製作に......
5/16(日)晴れ
まずはいつものごとく原寸のカット用原稿と
1/5の縮寸を見ながら
1x4、2x4の6ft材から材料の切り出し。
板継ぎするので、接続面を手押し機でカンナがけ
ちょっとだけ改良した(位置決め用に乳半のアクリルを付けました)ビスケット用のジグ
原寸でビスケットの一を見極め(こんにちはしないように)ながら溝堀
板継ぎしたのがこちら
クランプのかかっている方は肘掛け。段違いになっているのは後ろ足の材料です。
次に1x4材で前後の座面下の貫の製作。原寸原稿を合わせて、1枚の半分だけカット
もう1枚も半分カット
それぞれ互い違いに合わせて残り半分を写し取っていきます。
丸棒と、先端のかけたドリルビットを使って......
ボール盤用のドラムサンダーを作りました。
ドラムサンダー、フラッシュトリムビットなどを使って、2枚の板が同形状になるように加工。
Rの小さいビットを使って片銀杏面に加工しました。
送りのスピードが悪かったのか、一部こげてます。ヾ(;´▽`A``
貫の形状加工に思いのほか時間を取られて本日の作業は終了。時間に余裕はありますが、気分も何となく乗らないので早めに切り上げて、コズカイをせびる長男と次女を連れて愛車の給油&洗車に。
相方と長女はバレーボールの懇親会に行っているので、3人で晩ご飯を食べに.....最近の週末はこのパタ〜ンが多い気が.......ヾ(;´▽`A``
日曜日には、ちょっとしたサプライズがありました。そのお話はまた明日の記事で......
コメント/トラックバック大歓迎です。(^ロ^)~~♪
お寄りになった記念に是非一言!
古いエントリーへも遠慮なく書き込みしてって下さいね。
ランキング参加中
▼ 励みになります! よろしければポチッと一押し。▼
| 2010/05/17 21:45 |
タマネギ (_≧Д≦)ノ彡☆ |
ここ最近土日は特に早く寝てしまうことが多いスプラです。ヾ(;´▽`A`` 土曜日は自分の学校・子供の送り迎え、しかも今週は育成会の役員の集まりと何かと忙しい1日でした。日曜も木工やって......となんだか疲れていることもあって子供たちを寝かせていると睡魔に勝てずに一緒に寝てしまいます。
そんなわけで土日の出来事を日にちをずらして.......(-_^;)
5/15(土) 晴れ
この日は天気もいいので絶好のタマネギ日和\(^O^)/ ご近所さんも手伝ってくれてます。
我が家のタマネギ畑。ここの他にもう一カ所あります。
畑から引き抜いて
根っことヘタを取って
袋詰めにしてトラックに乗せて
ハウスの中へ。これでおおよそ軽トラ5台分です。
まだ半分弱ってところ。ここまでは我が家の場合すべて手作業です。(x_x)ゞ
おいしそうでしょ? スプラが大好きなパスタ作りには欠かせない食材の一つなので、ちょっと大変ですが楽しみでもあります。
1週間程乾燥させて、磨いて、袋詰めします。
皆は作業を続けてますが、学校へ行く時間なのでスプラの作業はここまで、
日曜日に撮った写真ですが、畑1枚分から取れたタマネギはこれだけ。午後から義妹夫婦が手伝いにきてくれたようで、日曜日の午前中までかかるはずが、土曜日1日で終わってしまったとか....およそ軽トラ12〜13台分です。
さてここで問題です。ブルーシートの中身は何でしょう?
答えは来週のお楽しみ。σ(^_^;)
誤解の無いように書いておきますが、農業ブログに転向したわけじゃありませんよ。(^O^;) 日曜日にはソファー作りに手をつけたので、明日にでも記事にしますね。
コメント/トラックバック大歓迎です。(^ロ^)~~♪
お寄りになった記念に是非一言!
古いエントリーへも遠慮なく書き込みしてって下さいね。
ランキング参加中
▼ 励みになります! よろしければポチッと一押し。▼
| 2010/05/14 20:56 |
ソファーのデザイン その2 |
今日もいいお天気でした。週末も2日とも晴れのようですね。半青空木工日和となるのか、タマネギ日和となるのか......(^_^;
さて、昨日のイメージを相方に見せたところ、クッション(カバー)が交換・洗濯可能なものなら.....的な感じで見た目の部分にはノータッチ(-o-;) 色々うるさく言ってたから気合い入れたのに......
今日は細かい取り合い、接続方法などを考える為に2Dで3面図(平面・正面・側面)を書いていましたが............難しい........素人のくせに懲りすぎた?Σ(゚Д゚;) 部分的に高度な継手or妥協を強いられそう。もうちょっとシンプルな作りにするべきなのか.......
材料はある程度そろっているので、すぐにでも製作に取り掛かれるのですが、このままだと図面通りには作れなさそう。焦ってもしょうが無いので、もうチョット熟考することに。
新たに描き直した2D図がこちら。昨日と同じく側面図です。
早速3D化して
今回は適当に色も着けてみました。
ルーバーは2段にしました。これはどうしてもひじ掛けにドリンクホルダーを付けたかったのですが、どうやって受けを作るか悩んだ結果、部分的にするよりはルーバー状にして....となったのが昨日の話し。今日もいい解決案が浮かばず、数だけ減らしてみました。ヾ(;´▽`A``
でも、おかげでパーツ点数が大幅に減っています。o(^-^)o
昨日のものと並べてみました。
だいぶすっきりしたかな?
細部はまだ煮詰まっていません。σ(^_^;)
クッションは、ニトリの低反発フロアクッション(スクエア) か低反発フロアクッション(コア)を使おうと思っているので、サイズはそれに合わせたものに。背もたれ側は普通のジャンボクッションにするかも。
色分けしてみましたが、ひじ掛けの部分が白だとすぐに真っ黒になってしまいそう。作りながら考えていきましょう。
コメント/トラックバック大歓迎です。(^ロ^)~~♪
お寄りになった記念に是非一言!
古いエントリーへも遠慮なく書き込みしてって下さいね。
ランキング参加中
▼ 励みになります! よろしければポチッと一押し。▼
| 2010/05/13 20:48 |
次回作!? |
同じくクッション無し。側面のルーバーはTVボード(市販品)にイメージを合わせてます。
Adobe Illustratorと言うソフトで、2Dの側面図を書いてからDXF形式(CADの汎用フォーマット)で書き出してGoogle SketchUpで3Dに起こしました。2Dでの作図はその時によって正面図・平面図だったりします。形状的に一番複雑そうなところ(メインになるところ)を最初に書きます。2D図面として仕上げてしまう時は、そのまま他の面を書いていきます。
コメント/トラックバック大歓迎です。(^ロ^)~~♪
お寄りになった記念に是非一言!
古いエントリーへも遠慮なく書き込みしてって下さいね。
ランキング参加中
▼ 励みになります! よろしければポチッと一押し。▼
| 2010/05/12 20:37 |
相方の方が一枚上手だった......(ioi) |
♬カエルの歌がぁ~♪ ♬聞こえてくるよぉ~♪
田んぼに水を入れてから、毎晩聞こえてくるカエルの鳴き声。この時期は窓を開けていることが多いので、ベッドの上で娘達を寝かしつけている時などまるで子守歌のように心地良く室内に響き渡ります。そんなわけで最近就寝時間が以上に早いスプラですが、いったい彼達(彼女達)は何処から湧いてくるのやら......田植えをしていたときにも既に卵がそこいら中にあったりしてびっくりします。
気になったのでチョットググってみたところ、夕暮れ~夜に鳴くのは、繁殖行動と、外敵に狙われないようになどと言った理由があるようですね。
さて、先日の「納品書」の件ですが、先日のエントリーへ頂いたコメントへのレスにも書きましたが、
「この位で出来ちゃうんだぁ~、ヘェ~(^ロ^)~~♪」
と笑顔でかわされてしまいました。きっちりと【請求書】と書くべきだったのか..........(´Д⊂グスン 昨晩も、頂いたコメントを元に
「プロに頼むと10万先だって......」
と言っても、
「安く上がってよかったね。ご苦労様でした。!(^^)!」
てな感じ。うぅ~~~~ん、ウチの相方なかなかのやり手です。ヾ(;´▽`A`` 週末の材料買い出しの前にもう一度オネダリしてみよぉ~っと。って、今週末から新たな作品製作にとりかかろうと思っていますが、まだ肝心の図面が出来ていません。間に合うのか!?Σ(゚Д゚;)
コメント/トラックバック大歓迎です。(^ロ^)~~♪
お寄りになった記念に是非一言!
古いエントリーへも遠慮なく書き込みしてって下さいね。
ランキング参加中
▼ 励みになります! よろしければポチッと一押し。▼
| 2010/05/10 20:36 |
小屋裏プチリフォーム その4 【 費用まとめ 】 |
こんばんは♪
北関東では5月に入ってからいいお天気が続いてます。雨が降ったのはたった1日。でも今夜から崩れるようですね。皆さんのところではいかがでしょうか?
NET版西日本新聞の記事で面白いものが紹介されていました。【JGBOARD(JGボード)】と言う紙製の家具です。材料として販売されたら加工も容易かなぁ....なんて思ったりしました。
さて昨日完成した小屋裏プチリフォームですが、製作費のまとめです。
【納品書】にしたのは、相方に見せて少しでも材料費をもらおうと言う魂胆ですが、はたしてうまくいくかどうか.......(^O^;)
半分以上在庫していた材料での作業だったので、在庫分と新規購入分で分けて計算してみました。針葉樹合板は在庫分と新規購入分で値段が40円ほど違います。
ビス類は全てランプ製作時(こっちが大半)や雨屋快適化工事の時に買った物なのではっきりとした金額は分かりませんが、全部で4・500本なのでまぁこんなところでしょう。
こうしてみるとプラダンが以外といい値段......(; ゚×゚;) これが無ければ材料費約1万円。本職に頼んだらいくらか買ったのかわかりませんが、この金額でこの仕上りなら上出来でしょう。人工手間分は丸々工具類の減価償却費ですね。まだまだ足りないけど........ヾ(;´▽`A`` 何より、毎回書いている気がしますが、自分で仕上げた満足感はプライスレスですよね。
コメント/トラックバック大歓迎です。(^ロ^)~~♪
お寄りになった記念に是非一言!
古いエントリーへも遠慮なく書き込みしてって下さいね。
ランキング参加中
▼ 励みになります! よろしければポチッと一押し。▼
| 2010/05/09 23:58 |
小屋裏プチリフォーム その3 【 完成(^◇^)/ 】 |
5月に入ってから一気に厚くなりましたね。雨が降ったのも1日だけと、4月の天候不順が嘘のようでなお天気続きですね。
ここのところ娘2人と9時頃には寝てしまうような生活が続いていたので、すっかり更新が滞っていましたが、GWの残りは家族サービスで、群馬県館林市にある【向井千秋記念子ども科学館】に行ったり、最終日は映画を見に行ったりとのんびり過ごしました。中途半端な2日間の出勤日がつらかった.....σ(^_^;)
昨日・今日と作業して【小屋裏プチリフォーム】が完成しました。
まずは先週できなかった下の写真部分の骨組みから。ピンぼけごめんなさい。
寸法でカットした物にポケットホール加工をしていきます。
約50ヶのポケットホール加工を施しました。
屑がこのくらいでました。
前回使ったクワガタジグを使って
反対側の壁面は断熱材と一体になった壁パネルが柱・梁の間にはまっているため、クワガタジグが使えないので、水平を使ってレベル合わせ。
壁側の部分は、梁と水平になるように2x4端材を取り付けました。
この後足りない材料を切り足して完成した骨組みがこちら。
この部分にも板張りします。(施行前)
貼りました。
写真奥のゴチャゴチャしてるのは、何年か前にすのこ状に板張りして空箱置きに利用している部分。
いよいよこちらにも板張りを
貼りました。
全体を見るとこんな感じ。
手前の道具や材料が置いてあるところが、既存の板張りスペース。およそ6帖強のスペースが拡張できました。棟木の一番高いところで、約1650mm、172cmのスプラはちょっとかがまないと頭がつかえてしまいますが、不自由無く歩き回れます。
次にプラダンを用意して
天井部分に貼付け。
材料を持ち込んでいた時に、断熱材の発泡スチロールに数カ所傷をつけてしまったので、今後の利用時のことを考えて養生用にと思い貼付けました。
右奥のこの部分にも貼っていきます。
貼りました。
これで、作業完了です。完成後の全体写真を撮り忘れてしまいました。σ(^_^;) 右奥の傾斜端の部分は床・天井ともスペースが狭いので、ねっころがっての作業だったり、他の部分は立て膝がメインでの作業だったりとけして作業性は良くなかったため、作業中は膝が、作業後は体中が変に痛くなりました。
今後収納用に棚などが必要になってくるかもしれませんが、必要に応じてボチボチやってくことにします。
そういえば、定期購読を申し込んだので、週末にドゥーパ!が届いていたのですが、残念ながらログキットは当たりませんでした。(´Д⊂グスン まぁ、当たっていたらそちらにかかりきりになってしまって、他のことが手に付かなくなりそうなので、神様が「お前、それどころじゃないだろ?」と言ってくれたことにしておきます。ヾ(;´▽`A``
コメント/トラックバック大歓迎です。(^ロ^)~~♪
お寄りになった記念に是非一言!
古いエントリーへも遠慮なく書き込みしてって下さいね。
ランキング参加中
▼ 励みになります! よろしければポチッと一押し。▼
| 2010/05/03 20:08 |
田植え&BBQ |
先週までの不純な天気が嘘のように、休みに入ってからは気持ちのいいお天気が続いてますね。まさに絶好の田植え日和。(_≧Д≦)ノ彡☆ 早朝からがんばっちゃいました。ここ何年も田植機だけはスプラがほぼ運転しています。
今年一発目の植え込み直前の写真。
真ん中のポールは田植機のボンネットに付いている物ですが、その先のボツポツと土の上に続く目印に合わせて進んでいくと、まっすぐ植えられるという仕組み。でも田んぼの状態でハンドルを取られたりするのできれいにまっすぐ植えるのはなかなか難しいです。
3枚ある我が家の田んぼの中でもきれいな長方形になっているのはこの1枚だけなのですが、ここはここで長辺方向がやたらと長いので結構気を使います。まぁまぁうまく植えられている方かな?
1枚目が終わりました。次女が補植(ホショク)といって機械でうまく植えられなかったところを手植えするために長靴を脱いでいるところ。(^_^)
我が家の目の前にある田んぼで、家の門から道路にでるとちょうど正面に見える場所です。ここがまっすぐに植わっていないと、毎朝の出勤時の気分が非常に悪くなります。ヾ(;´▽`A``
と言っても2ヶ月もすると株が太くなってほとんどわからなくなってしまうんですけどね。σ(^_^;)
ちょうどお昼頃には終わったので、手伝いにきてくれた義妹夫婦や近所の方と一緒に恒例のバーベキューをすることに。
着替えも終わって、娘たちはくつろいでます。(^_^)
今日の火起こしに活躍してくれたアイテムはこちら。
手回しのブロアーが壊れてしまったので、サイクロンのエンジンとしても使っているブロアーの登場です。ヾ(;´▽`A`` さすがに早いですね。あっという間に炭が真っ赤に。バーナーは最初だけでほとんど使わずに火起こしが出来ました。結構オススメです。o(^-^)o こつは少し遠めの距離から間欠的に、でないと炭が風圧で吹き飛びます。σ(^_^;)
5〜6年使っているコンロ
以前使っていたのはもう少し大きなスチール製の物でしたが、錆びて穴があいてしまったので買い替えました。薄手のステンレス製ですが、さすがに錆びて穴があくようなことはありません。
昼間のアルコールは効きますね。缶ビール4、5本で酔いが回ってしまいました。(^O^;) 片付けが終わった後、気がついたらなぜか作業台の上で寝てしまったようでΣ(゚Д゚;)、犬の散歩に行こうとした長男に起こされました。\(;゚∇゚)/ なんで作業台の上で寝てたんだか..........固かったけどまぁまぁの寝心地でした。ヾ(;´▽`A``
GWの休みも残り2日。長女のバレーボールも休みのようなので、家族サービスでも........さすがに後2日木工やってたら相方にはり倒されちゃう!?(-_^;)
コメント/トラックバック大歓迎です。(^ロ^)~~♪
お寄りになった記念に是非一言!
古いエントリーへも遠慮なく書き込みしてって下さいね。
ランキング参加中
▼ 励みになります! よろしければポチッと一押し。▼
| 2010/05/02 21:19 |
小屋裏プチリフォーム その2 |
今日も昨日に引き続きいいお天気でしたね。(^ロ^)~~♪
早朝にバレーボールの試合で出かけた次女・付き添いの相方を見送ってまだ残りの子供2人が寝ているうちから作業再開です。墨出しも昨日のうちにすんでいたので、サクサク進むかと思われましたが......微妙に寸法が違ったようで、梁が入ってくれません。(ioi) しょうがないので、どうしてもダメな3本を作業場まで持ち込んで再加工の後再び2階の小屋裏へ。
なんとかすべての梁が取り付けできました。
写真右手の奥の方は屋根の傾斜で座って作業することが出来ず仮置の合板の上で寝そべってのビス打ちです。
その後柱部分の切り欠きを加工した針葉樹合板を持って上がってくると......
次女が待ちくたびれた顔で未加工で貼った合板の上で寝そべってましたヾ(;´▽`A`` 梁の上をわたって一番奥まで行ったようです。落ちなくてよかった....w
とりあえず4枚の合板が貼り終わりました。
ちょっと角度が違いますが、こちらが施行前。
だいぶ雰囲気が変わりました。
奥にまだ2帖弱のスペースが残っています。
材料も無いのでこちらは後ほど。足場が出来たので、始まれば半日仕事かな....
今回の作業で2x4を13本、針葉樹合板12mmを4枚使いました。ストックの材料が尽きてしまったのでまた買い出しにいかないと......
この後水槽を一本立ち上げたり、作業場の後片付けをしたりとヘタゲな仕事の日よりも疲れた1日でした。
コメント/トラックバック大歓迎です。(^ロ^)~~♪
お寄りになった記念に是非一言!
古いエントリーへも遠慮なく書き込みしてって下さいね。
ランキング参加中
▼ 励みになります! よろしければポチッと一押し。▼
| 2010/05/01 21:17 |
小屋裏プチリフォーム |
今日はr連休初日とってもいいお天気でした。 GWというとスプラの家では田植えです。今日は6時起きで代掻きをしました。縁の部分は難しいので義父さんが運転。スプラは真ん中の比較的やりやすいところをやらせてもらいました。
写真のシバザクラは義母さんが植えたもの。
代掻きは木工で言うところの手押しカンナをかけるようなもの........田んぼの表面をナメッコクします。ww
代掻きの出来不出来で、田植えのしやすさに影響が出てくるので、結構真剣に作業します。
屋敷と呼んでる家の前の2枚の田んぼは台形と平行四辺形になっているため、機械での作業もなかなか大変です。
9時頃には終わったので、早速木工を.....σ(^_^;) 先日の続きでパネルを組み立て
端材を利用して右半分に中棚を付けました。
相方と子供たちの手を借りて取り付けました。
作業台上の収納です。扉を付けようと思いますが、開き方向など考えがまとまらないので、別の作業を。入居当初から考えていた小屋裏の床張りに手をつけたいと思います。
あらかじめ計っておいた梁間の寸法に合わせて2x4をカット木口にコンパネの端材を付けました。
試しに置いてみました。
作業場に戻って11本の梁の加工してきました。接続はポケットホールで。
先ほどのコンパネはクワガタ状に加工しました。芯の墨を見るためにセンターに切り欠きも。
こんな風に既存の柱をかわすためのクワガタ状です。既存の梁とのつら合わせ・墨合わせが1度に出来るジグです。
とりあえず6本の梁を渡しました。
外の作業場で加工して材料を2階の小屋裏まで上げての作業なので、思ったようにはかどりませんでした。天井を支えている吊り骨もいい感じで邪魔をしてくれるので、外しては付け替えてと言った作業の繰り返し。なんとか明日中にコンパネまで貼ってしまいたいのですが.....
コメント/トラックバック大歓迎です。(^ロ^)~~♪
お寄りになった記念に是非一言!
古いエントリーへも遠慮なく書き込みしてって下さいね。
ランキング参加中
▼ 励みになります! よろしければポチッと一押し。▼






